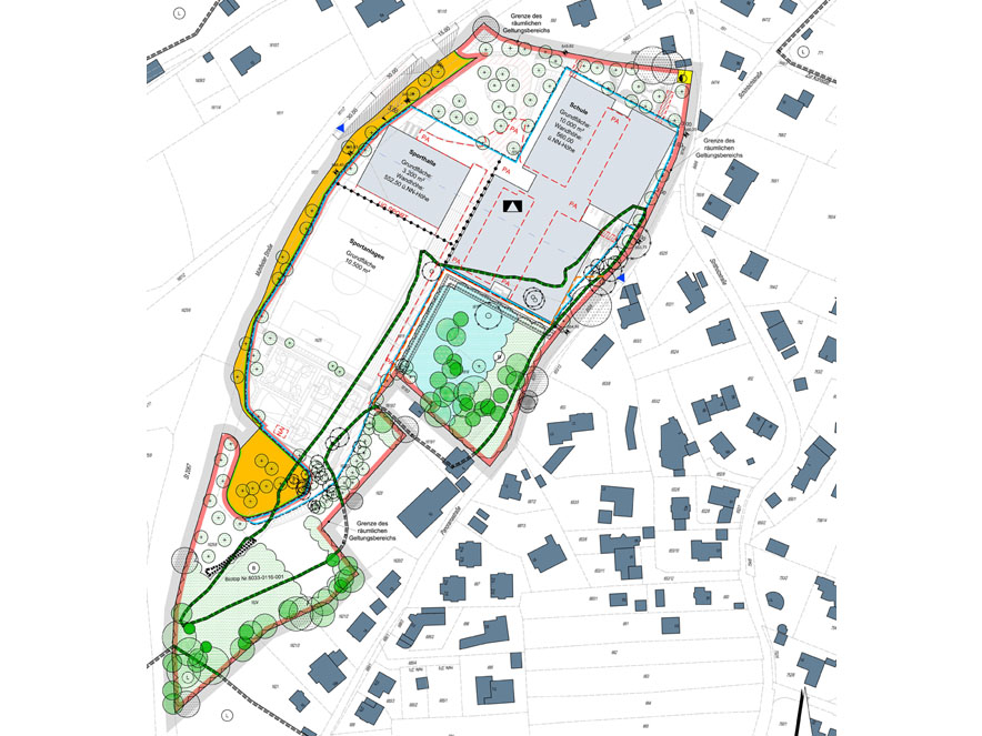
Herrsching am Ammersee Bebauungs- und Grünordnungsplan Gymnasium Herrsching
Bauherr / Auftraggeber:
Gemeinde Herrsching am Ammersee
Auftragnehmer:
Dietmar Narr
Leistungsprogramm:
Bebauungsplan mit Grünordnungsplan
Umweltbericht, Eingriffsermittlung, spezielle artenschutzrechtliche Prüfung,
vegetationskundliche und faunistische Bestandserhebungen, Umweltbaubegleitung

Ziel und Zweck dieses Bebauungsplanes ist die Schaffung der planungsrechtlichen Voraussetzungen zur Errichtung eines Gymnasiums mit zugehörigen schulischen Sportanlagen wie Dreifachturnhalle, Außensportanlagen und Freiflächen.