Sport- und Schwimmhalle Haag i.OB.
Bauherr / Auftraggeber:
Schulverband Haag i.OB.
Auftragnehmer:
Türk + Vohburger
Landschaftsarchitekten Part mbB
Leistungsprogramm:
Objektplanung
Leistungsphasen 1-9
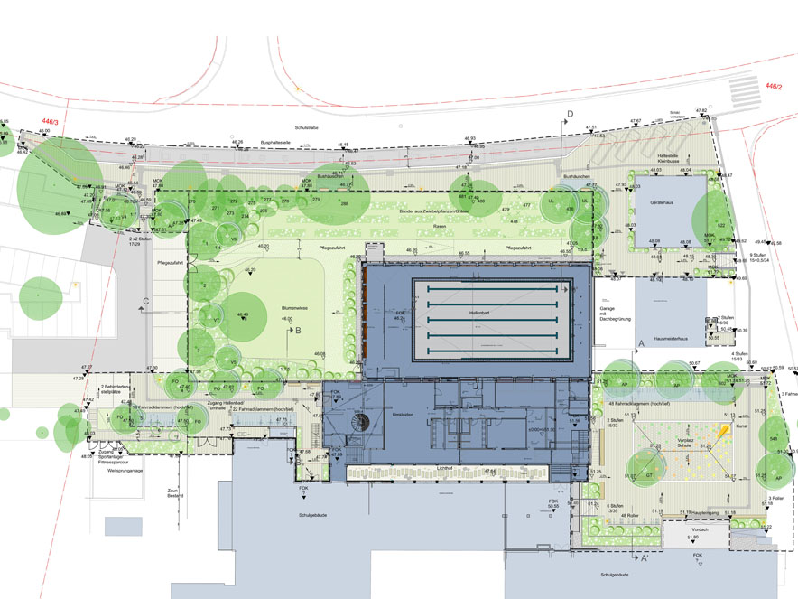
Durch die Sanierung der Sport- und Schwimmhalle an der Grund- und Mittelschule in Haag i.OB wurden auch die Freianlagen neu strukturiert und geordnet. Die Schwimmhalle bekam einen neuen großzügigen, barrierefreien Zugangsbereich inklusive überdachte Fahrradständer. Um die Schwimmhalle wurden die Grünflächen mit intensiven und extensiven Bereichen hergestellt. Im Weiteren wurde die Busspur barrierefrei umgebaut und mit Wartehallen ausgestattet. Der bestehende Vorplatz der Schule wurde überplant. Auch hier wurde ein besonderes Augenmerk auf die Barrierefreiheit gelegt. Zudem wurden überdachte Fahrradständer und verschiedene Sitzmöglichkeiten hergestellt.




